数十年の間、褐色の大地に埋まり、線路(Rail)を支え続けた豪州枕木を思わせるようなコンクリート。
欧米の堅木のヴィンテージ感を再現。
間柱、ルーバーとしてファサードの雰囲気を作り上げます。
さらに、ポストや照明を取り付けて機能的に。
カラーラインナップは、オールド、リッチ、ビター。様々なシーンに合わせて、チョイス。アンティーク感をこだわっているため、木目柄はランダム。
●コスレ等により表面が白くなる場合がありますのでご注意ください。
●製品の特性上、表面に気泡がある場合があります。
●コスレ等により表面が白くなる場合がありますのでご注意ください。
●製品の特性上、表面に気泡がある場合があります。
●経年変化により表面の色が剥がれたり、凹凸が浅くなったり骨材が現れたりすることがございます。
●古木を再現しており、製品毎に反り、歪み、寸法、色合いにばらつきがあります。 (施工の際には調整を行ってください。)
●同じレイルスリーパーシリーズの同じ色名の商品でも、製造方法の違いにより、大きな色差が生じることがあります。
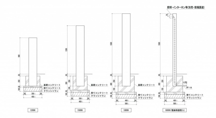
●本体に照明、インターホン等の取付用ビス穴はありません。 器具に応じて現場であけてください。このときの穴の深さは25mmまでとしてください。
●古木を再現しており、製品毎に反り、歪み、寸法、色合いにばらつきがあります。 (施工の際には調整を行ってください。)
●同じレイルスリーパーシリーズの同じ色名の商品でも、製造方法の違いにより、大きな色差が生じることがあります。
●本体に照明、インターホン等の取付用ビス穴はありません。 器具に応じて現場であけてください。このときの穴の深さは25mmまでとしてください。























